Útszelepek ábrázolása, jelölése szimbólumokkal
Útszelepek ábrázolása
Az útszelepek egységes ábrázolását a DIN ISO 1219 szabványban rögzítették. A szabvány célja az egységes ábrázolásmód, amely alapján egyértelműen látható, értelmezhető az adott szelep működése.
FONTOS! A szimbólumok csak a szelep működésére utalnak, és nem tartalmaz információt a szelep kiviteléről, hogy az ülékes vagy éppen tolattyús szerkezetű.
A szelepeket jelölő szimbólumok alapvető jellemzői
- minden egyes kapcsolási helyzet egy-egy négyzetben van ábrázolva
- a négyzetek száma megadja a lehetséges működési helyzetek számát
- az áramlási utak vonalakkal vannak jelölve
- az áramlási irányok jelölése nyilakkal történik
- a zárt csatlakozások jelölése keresztirányú vonallal lezárt
- a csatlakozások sorszámozottak
- szimbólumokkal jelöljük a szelepműködtetést, valamint a helyzetstabilitásra utaló információkat
Útszelepek csatlakozási számuk és működési helyzetük
Az útváltó szelepek jelölése a munkaági csatlakozónyílások száma (a vezérlőcsatlakozásokat nem számítva) és a működési helyzetek száma szerint történik:
[csatlakozások száma] / [működési helyzetek száma]
Például:
3/2-es útszelep (ejtsd: "három per kettes")
A szelepnek 3 munkaági csatlakozása és 2 működési helyzete van.

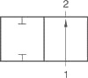
Minden egyes kapcsolási helyzet egy-egy négyzetben van ábrázolva. A példában egy 3/2-es alaphelyzetben zárt szelep látható.
Az első ábrán a szelep alaphelyzete látható.
Az 1-es csatlakozáson csatlakozik a táplevegőre, amely jelen esetben zárt. (kék színnel jelölve)
A 2-es csatlakozás a vezérelt csatlakozás, amely alaphelyzetben össze van kötve a 3-as kipufogással. (piros színnel jelölve)
A szelep aktuális kapcsolási helyzete zöld színnel jelölve.
A második ábrán a szelep működtetett helyzete látható.
A szelepet átváltottuk a másik kapcsolási helyzetébe.
Az 1-es csatlakozás össze van kötve a 2-es vezérelt csatlakozással. A 3-as kipufogó csatlakozás zárt.
A szelep aktuális kapcsolási helyzete zöld színnel jelölve.


Leggyakrabban alkalmazott szelepek szimbólumai
Csatlakozások és működési helyzetek száma alapján a leggyakrabban alkalmazott szelepek:
2/2-es, 3/2-es, 4/2-es, 5/2-es, 4/3-as és 5/3-as útszelepek








Szelepműködtetést és helyzetstabilitást ábrázoló szimbólumok
A szelep funkcióját jelölő szimbólum kiegészítéseként - a jobb illetve a bal oldalán - ábrázolhatjuk a működtetést és szelepvezérlést, valamint a helyzetstabilitásra utaló jelöléseket.










Csatlakozások számozásai
Szelepcsatlakozások számozottak, amely utal a csatlakozás funkciójára.
A jelölések mindig a szelep alaphelyzetére vonatkoznak. Ha nincs ilyen, akkor a jelölések arra a működési helyzetre vonatkoznak, amit a szelep a berendezés alaphelyzetében vesz fel.
Az alaphelyzet az a működési helyzet, amelyet a szelep a működtető erő megszűnése után felvesz.
| Táplevegő | 1 | P |
| Vezérelt csatlakozás | 2, 4, 6 | A, B, C |
| Kipufogás | 3, 5, 7 | R, S, T |
| Vezérlő csatlakozás | 10, 12, 14 | X, Y, Z |

Tekintsük át a gyakorlatban...
Konkrét példákon keresztül elemezzük a szimbólumokat.
A példában szereplő kézi működtetésű és pneumatikus vezérlésű szelepek esetén a kétirányú áramlás
(a szimbólumon kétirányú nyíl jelzi az áramlást) azt jelenti, hogy a levegő mindkét irányban áramolhat.
Ez esetben a csatlakozások igény szerint változtathatók. Amennyiben a táplevegő- csatlakozást más csatlakozási pontra kötjük, eltérő szelepműködést tudunk alkalmazni.
Ez a funkció a HAFNER szelepek egyedi tömítési rendszerének, valamint a szelep kialakításának köszönhető.

szelep működtetése: kézi működtetésű (kézi karral) helyzetstabilitás: bistabil (reteszelhető karral) pneumatikus csatlakozások száma: 5 működési helyzetek száma: 2, tehát 5/2-es szelep
Kézi működtetésű, 5/2-es, bistabil szelep
Pl.: HVR 520 701


szelep működtetése: pneumatikus vezérlésű helyzetstabilitás: monostabil (rugó- visszatérítésű) pneumatikus csatlakozások száma: 5 és 1 vezérlő csatlakozás (14-es jelölés) működési helyzetek száma: 2, tehát 5/2-es szelep
Pneumatikus vezérlésű, 5/2-es, monostabil, rugó-visszatérítéses szelep
Pl.: P 511 701


szelep működtetése: elektromos vezérlésű, elővezérelt, kézi segédműködtetéssel helyzetstabilitás: 3 állású, stabil középállással (rugó-visszatérítésű) pneumatikus csatlakozások száma: 5 működési helyzetek száma: 3, tehát 5/3-as szelep
Elektromos vezérlésű, elővezérelt 5/3- as szelep, stabil középállással, középállásban zárt kivitelben
Pl.: MH 531 701

Egyszerűbb alapkapcsolások
Az alábbi alapkapcsolásokon keresztül áttekintjük a különféle útszelepek alkalmazási lehetőségét.
A 2/2-es szelepek, nyit-zár szelepek, amelyek nyitják vagy zárják a közeg útját, amelyek lehetnek alaphelyzetben zárt vagy nyitott kivitelűek. Az alábbi kapcsolásban két darab elektromos vezérlésű, alaphelyzetben zárt 2/2-es szeleppel (S1, S2) vezéreljük az egyszeres működtetésű munkahengert (C1).
Ahhoz, hogy a munkahenger pozitív mozgást végezzen, az S2 szelepet kell működtetni. A vezérlő jel hatására az S2 szelep átvált (az 1-es csatlakozástól a 2-es felé áramlik a levegő) működtetve ezzel a munkahengert. A mínusz mozgáshoz az S1 szelepet szükséges működtetni. Ha egyik szelepet sem működtetjük, a dugattyúmozgás megáll, vagyis a munkahenger dugattyúját bármilyen helyzetben megállíthatjuk.
(A kapcsolás alján szereplő szimbólum egy levegőelőkészítő egység, amely tartalmaz szűrőt, nyomásszabályozót és olajozót. A munkahengerek kialakításáról, szimbólummal történő ábrázolásáról, valamint a levegőelőkészítő egységekről egy későbbi fejezetben lesz szó.)
![]() |
A 3/2-es szelepeket széleskörűen alkalmazzák a pneumatikus vezérlésekben, amelyek egyik helyzetükben töltést végeznek, másik helyzetben légtelenítést. Kapcsolási állapotuk szerint alaphelyzetben zárt vagy nyitott kivitelűek lehetnek. Az alábbi kapcsolásban két különböző vezérlést látható.
Egy elektromos vezérlésű, alaphelyzetben zárt 3/2-es szeleppel (S1) vezérlünk egy egyszeres működtetésű munkahengert (C1). Az S1 szelep a vezérlő jel hatására átvált (az 1-es csatlakozástól a 2-es felé áramlik a levegő) és a C1 munkahenger pozitív mozgást végez. A vezérlő jel megszűnésekor az S1 szelep visszavált és a munkahengerben lévő levegő a szelepen keresztül leszellőzik (a 2-es csatlakozástól a 3- as felé áramlik a levegő) és a munkahengerbe épített rugó a munkahenger dugattyúját alaphelyzetbe állítja.
A kettősműködésű munkahengert (C2) egy pneumatikus vezérlésű 5/2-es monostabil szelep (Y1) vezérli. Az Y1 szelep vezérlését pedig szintén egy elektromos vezérlésű, alaphelyzetben zárt 3/2-es szeleppel (S2) látjuk el. Az S2 szelep a vezérlő jel hatására átvált (az 1-es csatlakozástól a 2-es felé áramlik a levegő), amely ezáltal működteti az Y1 szelepet, amely szintén átvált (az 1-es csatlakozástól a 4-es felé áramlik a levegő). Az Y1 szelep pedig közvetlenül működteti a munkahengert, amely így pozitív mozgástvégez. A vezérlő jel megszűnésekor az S2 szelep leszellőzik (a 2-es csatlakozástól a 3-as felé áramlik a levegő), az Y1 szelep a rugó hatására átvált (az 1-es csatlakozástól a 2-es felé áramlik a levegő), aminek eredményeként a munkahenger negatív mozgást végez és alaphelyzetbe áll vissza.
![]() |
A 4/2-es és az 5/2-es, valamint a 4/3-as és 5/3-as szelepek a pneumatikus vezérlésekben hasonló funkciót látnak el. Az alábbi példában egy-egy kézi működtetésű szeleppel (S1, S2) vezérlünk egy-egy kettősműködésű munkahengert (C1, C2), amelynek a sebességének a beállításához fojtó-hangtompítót használunk.
A 4/2-es szelepvezérlés (S1) esetén azonos lesz a munkahenger (C1) pozitív és negatív mozgásának a sebessége, mivel a 4/2-es szelepnek egy kipufogó- csatlakozása van, amelyen keresztül a munkahenger cellái fojtva leszellőznek.
Ezzel szemben az 5/2-es szelepvezérlés (S2) esetén a munkahenger mindkét cellája külön kipufogó-csatlakozáson keresztül szellőzik le, amellyel így két fojtó-hangtompító szelepen keresztül külön-külön beállítható a munkahenger (C2) pozitív és negatív mozgásának a sebessége.
![]() |
A fenti példák olyan alapkapcsolások, amelyeken keresztül áttekinthetjük a szelepek alkalmazását.
A különféle vezérlésekről, valamint az összetettebb kapcsolásokról egy következő tananyagban lesz szó.
A következő fejezetekben átnézzük, a HAFNER szelepek típusszámainak jelölését...





