EDM 25/30
Megvezetett kompakt henger
Egyedi igények rögzítésére a rendelésösszesítő felületen van lehetőség
EDM 25/30
Megvezetett kompakt henger
Kérjük regisztráljon a 3D modellek és termék adatlapok letöltéséhez.
| Termék | Átmérő | Lökethossz | Csatlakozás | Dugattyúrúd átmérő | Tömítés anyaga |
|---|
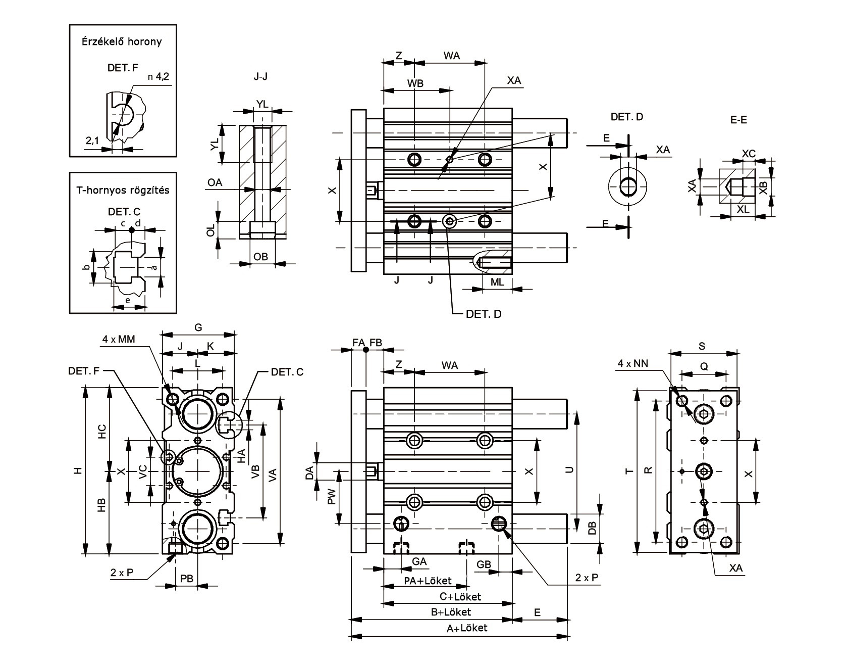
| Típusszám | EDM 16/… | EDM 20/… | EDM 25/… | EDM 32/… | EDM 40/… | EDM 50/… | EDM 63/… |
|---|---|---|---|---|---|---|---|
| Ø [mm] | Ø 16 | Ø 20 | Ø 25 | Ø 32 | Ø 40 | Ø 50 | Ø 63 |
| A+ (0-50) | 42 | 53 | 53,5 | 97 | 91 | 106,5 | 106,5 |
| A+ (75-200) | 64,5 | 84,5 | 85 | 102 | 102 | 118 | 118 |
| B+ | 46 | 53 | 53,5 | 59,5 | 66 | 72 | 77 |
| C+ | 33 | 37 | 37,5 | 37,5 | 44 | 44 | 49 |
| DA | 8 | 10 | 10 | 12 | 12 | 16 | 16 |
| DB | 10 | 12 | 16 | 20 | 20 | 25 | 25 |
| E (0-50) | 0 | 0 | 0 | 37,5 | 31 | 34,5 | 29,5 |
| E (75-200) | 18,5 | 31,5 | 31,5 | 42,5 | 36 | 46 | 41 |
| FA | 8 | 10 | 10 | 10 | 10 | 15 | 15 |
| FB | 5 | 6 | 6 | 12 | 12 | 13 | 13 |
| G | 30,5 | 36,8 | 42,8 | 49 | 55 | 65 | 79 |
| GA | 11 | 11,5 | 11,5 | 12 | 15 | 15 | 15,5 |
| GB | 8 | 9 | 10 | 9 | 12 | 12 | 13,5 |
| H | 64 | 84 | 94 | 113 | 121 | 149 | 163 |
| HA | M4 | M5 | M5 | M6 | M6 | M8 | M10 |
| HB | 32,5 | 41,5 | 46,5 | 56 | 60 | 74 | 81 |
| HC | 32 | 42,5 | 47,5 | 57 | 61 | 75 | 82 |
| J | 15 | 18 | 21 | 24 | 27 | 32 | 39 |
| K | 15,5 | 18,8 | 21,8 | 25 | 28 | 33 | 40 |
| L | 22 | 24 | 30 | 34 | 40 | 46 | 58 |
| MM | M5 | M5 | M6 | M8 | M8 | M10 | M10 |
| ML | 12 | 13 | 15 | 20 | 20 | 22 | 22 |
| NN | M5 | M5 | M6 | M8 | M8 | M10 | M10 |
| OA | 4,2 | 5,2 | 5,2 | 6,7 | 6,7 | 8,6 | 8,6 |
| OB | 8 | 9,5 | 9,5 | 11 | 11 | 14 | 14 |
| OL | 4,5 | 5,5 | 5,5 | 7,5 | 7,5 | 9 | 9 |
| P | M5 | G 1/8" | G 1/8" | G 1/8" | G 1/8" | G 1/4" | G 1/4" |
| PA+ | 15 | 13,5 | 12,5 | 6,5 | 13 | 9 | 13 |
| PB | 10 | 11 | 14 | 16 | 18 | 21,5 | 28 |
| PW | 19 | 25 | 30 | 35,5 | 39,5 | 47 | 58 |
| Q | 16 | 18 | 26 | 30 | 30 | 40 | 50 |
| R | 54 | 70 | 78 | 96 | 104 | 130 | 130 |
| S | 25 | 30 | 40 | 45 | 45 | 60 | 70 |
| T | 62 | 81 | 91 | 110 | 118 | 146 | 158 |
| U | 46 | 54 | 64 | 78 | 86 | 110 | 124 |
| VA | 56 | 72 | 82 | 98 | 106 | 130 | 142 |
| VB | 38 | 44 | 50 | 63 | 72 | 92 | 110 |
| VC | 10,5 | 12,5 | 15 | 19,5 | 25 | 33 | 34 |
| WA (0-30) | 24 | 24 | 24 | 24 | 24 | 24 | 28 |
| WA (40-100) | 44 | 44 | 44 | 48 | 48 | 48 | 52 |
| WA (125-200) | 110 | 120 | 120 | 124 | 124 | 124 | 128 |
| WB (0-30) | 17 | 29 | 29 | 33 | 34 | 36 | 38 |
| WB (40-100) | 27 | 39 | 39 | 45 | 46 | 48 | 50 |
| WB (125-200) | 60 | 77 | 77 | 83 | 84 | 86 | 88 |
| X | 24 | 28 | 34 | 42 | 50 | 66 | 80 |
| XA H9 | 3 | 3 | 4 | 4 | 4 | 5 | 5 |
| XB | 3,5 | 3,5 | 4,5 | 4,5 | 4,5 | 6 | 6 |
| YY | M5 | M6 | M6 | M8 | M8 | M10 | M10 |
| YL | 10 | 12 | 12 | 16 | 16 | 20 | 20 |
| Z | 5 | 17 | 17 | 21 | 22 | 24 | 24 |
| a | 4,4 | 5,4 | 5,4 | 6,5 | 6,5 | 8,5 | 11 |
| b | 7,4 | 8,4 | 8,4 | 10,5 | 10,5 | 13,5 | 17,8 |
| c | 3,7 | 4,5 | 4,5 | 5,5 | 5,5 | 7,5 | 10 |
| d | 3,5 | 3,6 | 3,8 | 4,5 | 5 | 5,5 | 8 |
| e | 6,7 | 8,6 | 9 | 10,5 | 10,5 | 14,5 | 19,5 |
| f | 2 | 2,2 | 2,2 | 2,2 | 2,2 | 2,2 | 2,2 |
| g | 4,2 | 4,2 | 4,2 | 4,2 | 4,2 | 4,2 | 4,2 |
| Funkció: | kettős működésű |
|---|---|
| Átmérő: | Ø25 |
| Lökethossz: | 30 mm |
| Csatlakozás: | G 1/8" |
| Hőmérséklet tartomány: | -20°C…+80°C |
| Dugattyúrúd anyaga: | keménykrómozott acél (CK45) |
| Dugattyú: | mágneses |
| Dugattyú anyaga: | alumínium |
| Dugattyúrúd átmérő: | Ø10 mm |
| Hengertest anyaga: | eloxált alumínium |
| Húzóerő (6 bar): | 235 N |
| Közeg: | sűrített levegő |
| Löketvég csillapítás: | rugalmas |
| Nyomóerő (6 bar): | 280 N |
| Tömítés anyaga: | NBR |
| Vezetőpersely anyaga: | szinterbronz |
| Üzemi nyomás: | 1…10 bar |












