P 510 501 G
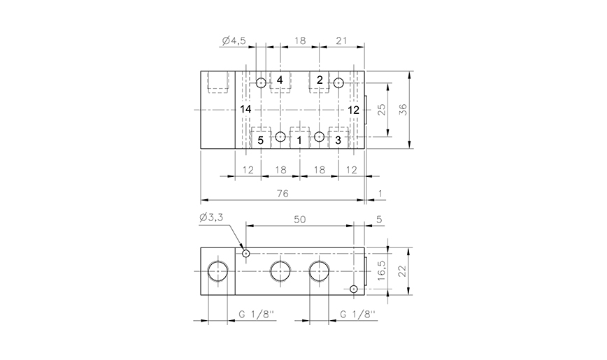
5/2-es pneumatikus vezérlésű szelep, G-széria, monostabil - G1/8"
Egyedi igények rögzítésére a rendelésösszesítő felületen van lehetőség
P 510 501 G
5/2-es pneumatikus vezérlésű szelep, G-széria, monostabil - G1/8"
Kérjük regisztráljon a 3D modellek és termék adatlapok letöltéséhez.
| Termék | Csatlakozás | Helyzetstabilitás | Átáramlás (P1=6 bar, ΔP=1 bar) | Vezérlő csatlakozás | Vezérlő nyomás | Üzemi nyomás |
|---|
| Vezérlés: | pneumatikus/levegővel vezérelt |
|---|---|
| Funkció: | 5/2-es |
| Csatlakozás: | G 1/8" |
| Hőmérséklet tartomány: | -10°C…+50°C |
| Helyzetstabilitás: | monostabil |
| Átáramlás (P1=6 bar, ΔP=1 bar): | 650 l/perc |
| Csatlakozások elhelyezkedése: | szelep két oldalán/egymással szemben |
| Kivitel: | légrugó-visszaállítással |
| Közeg: | sűrített levegő |
| Szelepház anyaga: | alumínium |
| Szelep változat: | különálló és alaplapra is szerelhető (G-széria) szelep |
| Vezérlő csatlakozás: | G 1/8" |
| Vezérlő nyomás: | azonos az üzemi nyomással |
| Üzemi nyomás: | 2…10 bar |











